Telaio a croce fissa per dispersione ricchezza
Telaio a croce rotante per dispersione ricchezza per PT
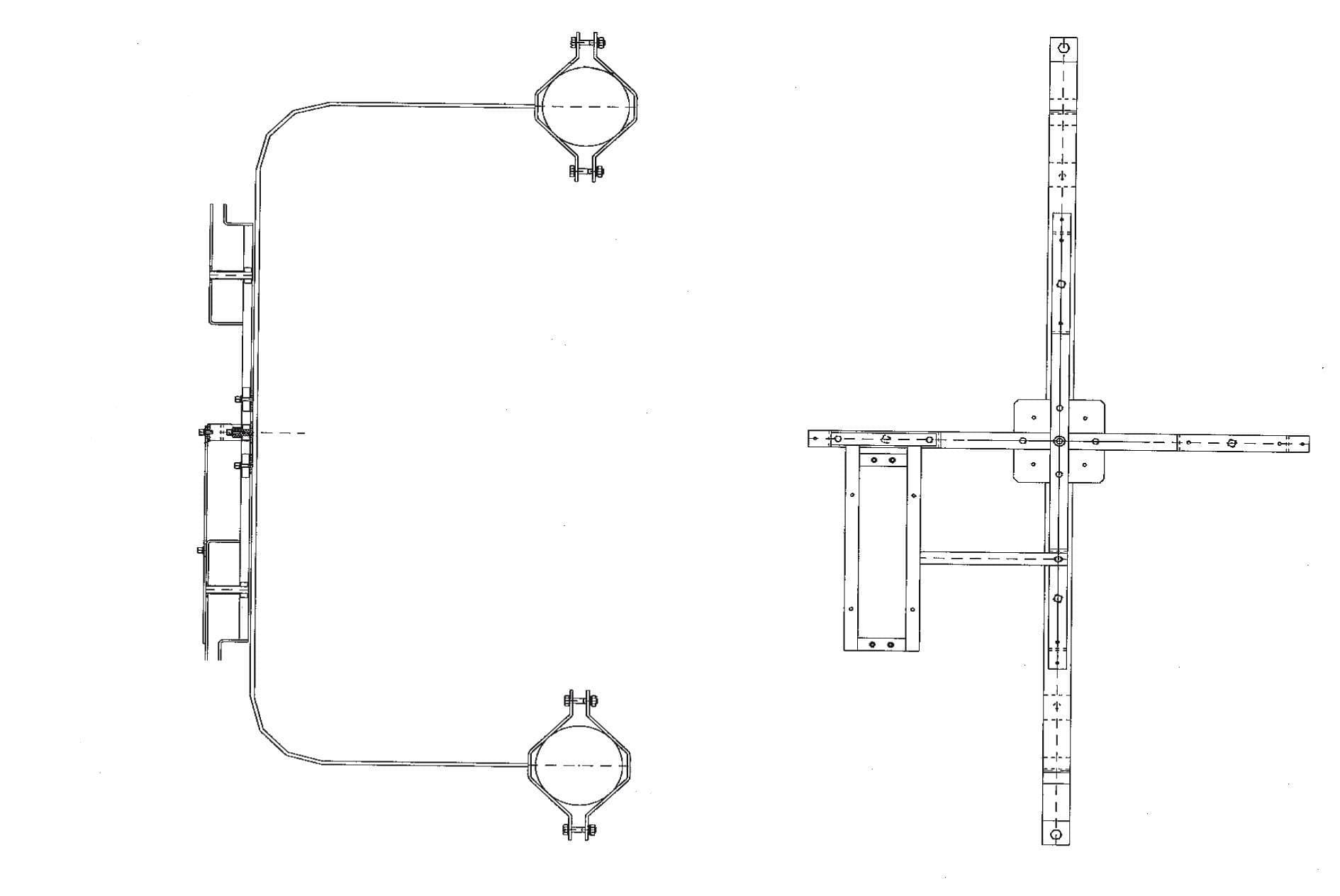
Struttura metallica da ancorare al muro che consente l’avvolgimento della “ricchezza” ove previsto del cavo fibre ottiche.
- Cod. FO V PT10 - Dispositivo per parete tipo PT 10
- Cod. FO V PT19 - Dispositivo per parete tipo PT 19
- Cod. FO V PT20 - Dispositivo per parete tipo PT 20
- Cod. FO V PT23 - Dispositivo per parete tipo PT 23



